Ir al contenido

Operador R50 para Puertas Batientes y Corredizas Telescopicas 220V, 2F, 2000kg arrastre, 10m ancho.

*$ 86,939.10 *$ 86,939.10

  • Marca


💡



Correo electrónico no válido
Te avisaremos cuando el producto vuelva a estar disponible
* Precios válidos solo en tienda en línea. Pueden no aplicar en tiendas físicas.
Términos y condiciones
Tiempo de preparación 1-2 días hábiles
Envío: 2-3 días hábiles

Pagos seguros con 
Marca: RIB

Operador R50 para Portones Industriales Abatibles y Corredizos de hasta 2000 Kg

Operador irreversible con ruedas motrices para portones industriales abatibles o corredizos de hasta 2000 kg y 10 metros. Sistema de tracción variable con presión regulable (30-130 kg) mediante resorte ajustable. Ruedas motrices cubiertas de goma capaces de salvar desniveles de hasta 3 cm gracias al grupo motorreductor deslizante sobre guía vertical. Unidad de potencia indestructible con componentes en baño de aceite, motor ventilado con sonda térmica y sistema de desbloqueo manual para emergencias.

Características Técnicas

Sistema de Tracción con Ruedas Motrices

  • Tipo de operador: Irreversible con ruedas motrices
  • Fuerza de tracción: Variable según presión regulable de ruedas sobre el suelo
  • Presión regulable: 30 kg hasta 130 kg máximo
  • Ajuste de presión: Mediante resorte ajustable
  • Ruedas motrices: Cubiertas de goma con adherencia optimizada
  • Capacidad de desnivel: Hasta 3 cm
  • Guía vertical: Para deslizamiento del grupo motorreductor
  • Instalación: En el extremo de la hoja del portón

Motor y Componentes

  • Motor: Ventilado con protección por sonda térmica
  • Reductor de velocidad: Integrado
  • Componentes mecánicos: En baño de aceite para máxima durabilidad
  • Unidad de potencia: Indestructible, diseño robusto y práctico
  • Carcasa: Tratamiento anticorrosivo especial
  • Protección: Contra humedad, polvo y oxidación

Capacidad y Rendimiento

  • Capacidad de motor: 511 W (3/4 HP)
  • Peso máximo de hoja: 2000 kg
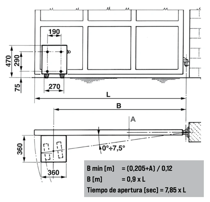
  • Largo máximo de hoja: 10 metros
  • Fuerza máxima de empuje: 400 N
  • Velocidad de operación: 0.18 m/s
  • Tiempo apertura promedio a 90°: 78 segundos
  • Peso del operador: 45 kg
  • Temperatura de operación: -10°C a 55°C
  • Grado de protección: IP54

Frecuencia de Uso

  • Ciclos diarios sugeridos: 300
  • Servicio: 60%
  • Ciclos consecutivos garantizados: 4
  • Mantenimiento: Mínimo después de la instalación

Sistema Eléctrico y Desbloqueo

  • Alimentación: 220V, 2 fases
  • Absorción: 1.96 A
  • Desbloqueo manual: Dispositivo fácil y seguro que levanta la rueda motriz para operación manual
  • Sin riesgo: Acceso garantizado en caso de falla eléctrica

Requisitos de Instalación

  • Estructura del portón: Debe ser sólida y no propensa a deformación
  • Piso: Debe ser sólido y nivelado dentro del radio de operación
  • Aplicaciones: Portones abatibles grandes industriales

Sistema de Tracción Ajustable con Ruedas Motrices

Operador irreversible único con ruedas motrices cubiertas de goma y presión regulable de 30 a 130 kg mediante resorte ajustable. Capaz de salvar desniveles de hasta 3 cm gracias al grupo motorreductor deslizante sobre guía vertical, ideal para pisos industriales irregulares.

Unidad de Potencia Indestructible 

Motor ventilado protegido por sonda térmica con todos los componentes mecánicos en baño de aceite. Diseño robusto que garantiza máxima resistencia, funcionalidad y confiabilidad en todas las condiciones ambientales con protección IP54.

Instalación en Extremo de Hoja para Portones Grandes 

Diseñado específicamente para instalación en el extremo de la hoja de portones abatibles grandes de hasta 2000 kg y 10 metros. Fuerza de empuje de 400 N con velocidad de 0.18 m/s, tiempo de apertura a 90° en solo 78 segundos. 

Mantenimiento Mínimo y Máxima Durabilidad

Carcasa con tratamiento anticorrosivo especial que protege contra humedad, polvo y oxidación. Componentes en baño de aceite que aseguran máxima durabilidad. Mantenimiento mínimo después de la instalación para operación continua confiable.

Desbloqueo Manual Seguro para Emergencias

Sistema de desbloqueo fácil y seguro que levanta la rueda motriz permitiendo operación manual del portón. Elimina el riesgo de quedar atrapado dentro o fuera en caso de falla eléctrica, garantizando acceso en todo momento.

Características Técnicas

  • Alimentación: 220V, 2 fases
  • Absorción: 1.96 A
  • Motor: Ventilado con sonda térmica
  • Protección térmica: Por sonda integrada
  • Grado de protección: IP54
  • Tipo: Con ruedas motrices y reductor de velocidad integrado
  • Sistema: Irreversible con tracción variable
  • Ruedas motrices: Cubiertas de goma (adherencia optimizada)
  • Peso máximo de hoja: 2000 kg
  • Largo máximo de hoja: 10 metros
  • Velocidad: 0.18 m/s
  • Fuerza de empuje: 400 N máximo
  • Tiempo de apertura a 90°: 78 segundos
  • Presión de ruedas: 30-130 kg regulable
  • Ajuste de presión: Resorte ajustable
  • Capacidad de desnivel: Hasta 3 cm
  • Guía: Vertical para deslizamiento
  • Peso del operador: 45 kg
  • Temperatura: -10°C a 55°C
  • Componentes: En baño de aceite
  • Ciclos diarios: 300 sugeridos
  • Servicio: 60%
  • Ciclos consecutivos: 4 garantizados
  • Instalación: En extremo de hoja
  • Sistema irreversible: Bloqueo automático
  • Desbloqueo manual: Dispositivo que levanta rueda motriz
  • Operación manual: Disponible en falla eléctrica
  • Protección del motor: Sonda térmica
  • Grado de protección: IP54 (polvo y salpicaduras)
  • Tratamiento anticorrosivo: Especial en carcasa
  • Protección contra: Humedad, polvo y oxidación
  • Requisito de piso: Sólido y nivelado
  • Requisito de estructura: Sólida, sin deformación
  • Mantenimiento: Mínimo

Cotizar RIB R50

Debido a las dimensiones del producto, se debe de realizar una cotización individual. Por favor, agregue sus datos y nos pondremos en contacto con usted.

Agradecemos su retroalimentación

Nuestro equipo le responderá lo antes posible.

Mientras tanto, le invitamos a visitar nuestro sitio web.


Accesorios compatibles con RIB R50

Tu snippet dinámico se mostrará aquí… Este mensaje se muestra porque no brindaste opciones suficientes para recuperar el contenido.

Refacciones compatibles con RIB R50

Tu snippet dinámico se mostrará aquí… Este mensaje se muestra porque no brindaste opciones suficientes para recuperar el contenido.


Artículos Relacionados: Kit Operador R50